




Apenas 01 unidade disponível em um dos bairros mais nobres da cidade, a 05 minutos de caminhada até o centro da cidade.
Características do imóvel:
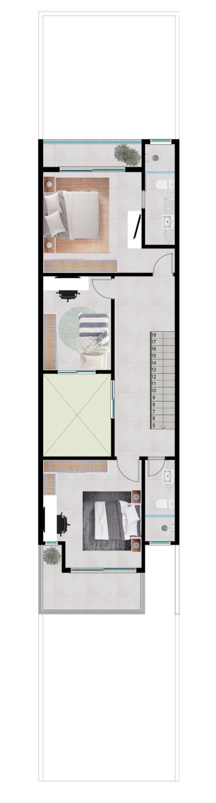
- 03 quartos (sendo uma suíte)
- Sala e cozinha com ilha integrados
- Jardim de inverno na sala
- Quartos com varanda e sacada com vista para área de preservação
- Sem vizinho de fundos
- Quintal com 45 m2 nos fundos, ideal para área de lazer
- Garagem para 01 carro
- 150 m2 de área construída
- Infra estrutura completa para rede de água fria e água quente, com utilização de sistema boiler ou aquecedor de passagem
- Projetos de instalação elétrica, sanitária, hidráulica e telecom personalizado e com Eng. Responsável
- Acabamento fino, porcelanato, pintura com massa corrida, rebaixamento de gesso e tudo mais
- Entrega com chave na mão
- Obra com prazo de entrega para 08/2024
- Valor de venda a partir de 01/2024 - R$ 650.000,00
- Valor de venda com obra pronta R$ 750.000,00
- Sinal de 25% e financiamento de saldo com entrega do habite-se
- Opção de parcelas ao longo da obra, de acordo com a vontade do cliente